Aktuelles

Zuschlag für Bau eines Tanklagers erhalten

Keil Anlagenbau hat erneut den Zuschlag für den Bau eines Tanklagers für Polyol und Isocyanat erhalten. Auftraggeber ist ein internationaler Verarbeiter für Kunststoffe & Polymer-Lösungen.

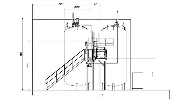
Auftstellplan Tanklager
Model Tanklager

Keil Anlagenbau liefert für die Produktion das Tanklager zur Lagerung von Polyol und Isocyanat, jeweils mit Peripherie. Die doppelmanteligen Behälter mit einem Volumen von 40 m³ sind beheizt und isoliert und werden an der Außenseite der Halle stehend aufgestellt.

Das Tanklager ist Teil eines Neubaus zur Fertigung von flexiblen Rohrleitungen vor allem für den Hausanschlussbereich. Der hergestellte Schaum wird für die Isolierung der Leitungen genutzt. Dieser dämmt und schützt vor Feuchtigkeit.

Die Behälter sollen Anfang diesen Jahres angeliefert und aufgestellt werden.